 
                                 
                                 
                                 
                                 
                                 
                                 
                                 
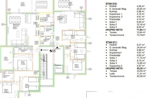
                            We offer for sale a three-room penthouse apartment on the second floor of a new building in Okrug Gornji. (APARTMENT S11)
The apartment consists of a corridor, an entrance hall, three bedrooms, two bathrooms with toilets, a living room with kitchen and dining room, a spacious balcony and a loggia.
The living area is 93.20 m2, balcony 23.93 m2, the loggia 11.41 m2 and a roof terrace of 93.58 m2.
The apartment includes an outdoor parking space.
Construction completion is scheduled for summer 2024, the apartment will be equipped with air conditioning in every room, underfloor heating, aluminum windows with electric shutters.
The sale is "turnkey", which includes the installation of ceramics, laminate, sanitary ware, etc.
The building will be built in a quiet and safe location, close to all major facilities of daily life or tourist rental, just 200m from the sea.
Great opportunity and investment!
For further information we are at your disposal.
 
| Property ID: 174 | Property type: Flats | 
| Service type: Sale | Location: Trogir-Čiovo | 
| Surface: 221.00 m2 | Price: 596,000 € | 

