Dieses wunderschöne Grundstück, mit Baugenehmigung für ein Haus mit Pool, ist oberhalb von Rogoznica (Šibenik) in einer sehr ruhigen Gegend, eingebettet zwischen Olivenhainen.
Vom Grundstück aus, bietet sich ein herrlicher Blick auf das Meer und Inseln. Es ist 712 m² groß, bereits gerodet, für den Bau eines Hauses vorbereitet und teilweise mit einer Steinmauer versehen. Es ist nur 600 m (Luftlinie) vom Meer entfernt. Bis zum Supermarkt sind es nur 1,5 km und zur Altstadt von Rogoznica sind es ca. 2 km.
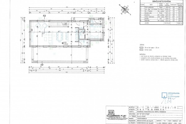
Wenn Ihnen das Projekt gefällt, können Sie bereits in kürzester Zeit mit dem Bau beginnen.
Wenn Sie den Tag, ohne Verkehr und ohne Lärm genießen möchten, umgeben von Olivenhainen und geschützt vor neugierigen Blicken, dann ist dies das richtige Grundstück für Sie. Oder Sie möchten, dass die Immobilie Ihnen ein zusätzliches Einkommen verschafft, denn es ist hervorragend zur Vermietung geeignet.
Für weitere Informationen stehe ich Ihnen gerne zur Verfügung.
| Eigenschafts-ID: 204 | Immobilien Typ: Grundstücke |
| Art der Leistung: Verkauf | Standort: Rogoznica |
| Grundfläche: 712.00 m2 | Preis: 150,000 € |

