Neubau-Apartments in Primošten – nur 850 m vom Meer und der malerischen Altstadt entfernt! In ruhiger Lage gelegen, bieten diese modernen Wohneinheiten höchsten Komfort. Auf Qualität und eine erstklassige Ausführung aller Arbeiten wird größter Wert gelegt. Das Gebäude umfasst lediglich fünf Wohneinheiten, was für eine besonders angenehme und ruhige Wohnatmosphäre sorgt.
S 1 - Diese attraktive Wohnung befindet sich im Erdgeschoss und bietet eine Wohnfläche von 45 m². Sie besteht aus einem hellen Wohnbereich, einem gemütlichen Schlafzimmer, einem modernen Badezimmer sowie einer offenen Küche mit Wohnbereich. Eine großzügige Terrasse und ein 67 m² großer Außenbereich bieten zusätzlichen Platz zum Entspannen und Genießen. Preis 170.000 € - Verkauft
S 3 - Diese exklusive Wohnung im 1. Obergeschoss erstreckt sich über die gesamte Etage und bietet eine großzügige Wohnfläche von 83 m². Sie umfasst einen einladenden Eingangsbereich, zwei komfortable Schlafzimmer, ein modernes Badezimmer, eine praktische Garderobe sowie ein separates Gäste-WC. Die offene Küche geht nahtlos in das Wohn- und Esszimmer über und schafft eine harmonische Wohnatmosphäre. Zwei Balkone bieten zusätzlichen Raum zum Entspannen und Genießen. Preis 260.000 €
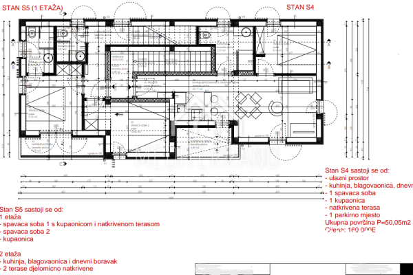
S 4 - Diese exklusive Wohnung befindet sich im 2. Obergeschoss und bietet eine Gesamtfläche von 50 m². Sie verfügt über einen einladenden Eingangsbereich, ein geräumiges Schlafzimmer, ein modernes Badezimmer sowie eine offene Küche mit Wohnbereich. Ein großzügiger Balkon rundet das Wohnkonzept ab und lädt zum Entspannen ein. Preis 150.000 € - Verkauft
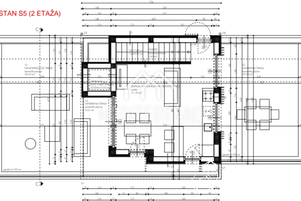
S 5 - Das exklusive Penthouse erstreckt sich über zwei Etagen im 2. Obergeschoss und bietet eine großzügige Wohnfläche von 130 m². Es umfasst einen stilvollen Eingangsbereich, zwei geräumige Schlafzimmer, zwei moderne Bäder sowie eine offene Küche mit Wohnbereich. Ein besonderes Highlight sind die vier großzügigen Balkone, die alle einen atemberaubenden Meerblick bieten und zum Entspannen einladen. Preis 340.000 €
Zu jeder Wohnung gehört ein Außenparkplatz.
Für weitere Informationen stehen wir Ihnen gerne zur Verfügung.
| Eigenschafts-ID: 347 | Immobilien Typ: Appartements |
| Art der Leistung: Verkauf | Standort: Primošten |
| Grundfläche: 8300.00 m2 | Preis: 260,000 € |

